韩式帐篷(济州阳光岛)
主材:φ80防腐烤漆木
外膜:PVDF优质膜材
内膜:帆布
墙体:帆布
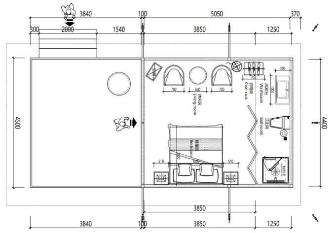
规格:4.5m*9m
套内面积:23.1㎡
投影面积:56㎡
抗风等级:6级以下
产品咨询
产品介绍





上一篇:
阿拉亚帐篷产品咨询
主材:φ80防腐烤漆木
外膜:PVDF优质膜材
内膜:帆布
墙体:帆布
规格:4.5m*9m
套内面积:23.1㎡
投影面积:56㎡
抗风等级:6级以下





产品咨询