阿拉亚帐篷
主材:优质碳钢钢管(氟碳漆防锈处理)
外膜:PVDF优质膜材
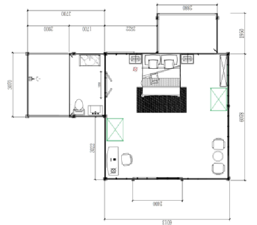
墙体:帆布+珍珠棉铝箔+PVC规格:5*5m+4*2.5m(卫浴)
套内面积:46.5㎡
投影面积:57㎡
产品面积:35㎡地台面积:57㎡
抗风等级::10级以下
产品咨询
产品介绍





上一篇:
澳式帐篷下一篇:
韩式帐篷(济州阳光岛)产品咨询
主材:优质碳钢钢管(氟碳漆防锈处理)
外膜:PVDF优质膜材
墙体:帆布+珍珠棉铝箔+PVC规格:5*5m+4*2.5m(卫浴)
套内面积:46.5㎡
投影面积:57㎡
产品面积:35㎡地台面积:57㎡
抗风等级::10级以下





产品咨询